

|
起重量 |
跨度 |
提升高度 |
電源 |
大車運行機構 |
小車 |
車軌直徑 |
軌道面寬 |
最大輪壓 |
總重量 |
主要尺寸 |
備注 |
||||||||||||||
|
地面 |
操縱室 |
葫蘆型號 |
起升速度 |
運行速度 |
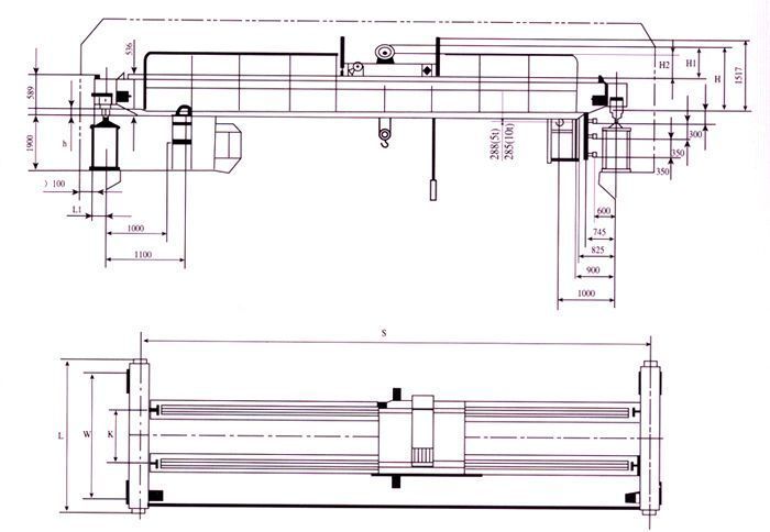
K |
W |
L |
L1 |
H |
H1 |
H2 |
h |
|||||||||||||
|
速度 |
電動機 |
功率 |
速度 |
電動機 |
功率 |
|
|
|
|||||||||||||||||
|
t |
m |
|
m/min |
型號Type |
kW |
m/min |
型號Type |
kW |
|
m/min |
mm |
KN |
t |
mm |
|
||||||||||
|
5 |
7.5 |
6; 9; 12; |
三相
交流 380V 50Hz |
28.72
|
YSE802-4D
|
2×0.8
|
42.9
|
YSE90L-4D
|
2×1.5
|
CD1(MD1)5-(6,9,12)-A2
|
8;8/0.8
|
17
|
Ф300
|
37-70
|
34.43 |
4.9 |
1500
|
3000
|
3550
|
120
|
1163
|
781
|
578
|
-3
|
|
|
10.5 |
38.04 |
5.86 |
17
|
||||||||||||||||||||||
|
13.5 |
40.9 |
6.78 |
107
|
||||||||||||||||||||||
|
16.5 |
44.13 |
7.98 |
187
|
||||||||||||||||||||||
|
19.5 |
47.17 |
9.2 |
267
|
||||||||||||||||||||||
|
22.5
|
50.28
|
10.7
|
347
|
||||||||||||||||||||||
|
10 |
7.5 |
YSE90L-4D
|
2×1.5
|
CD1(MD1)10-(6,9,12)-A2
|
7;7/0.7
|
57.28 |
5.6 |
121
|
1374
|
863
|
620
|
47
|
|||||||||||||
|
10.5 |
62.68 |
6.68 |
187
|
||||||||||||||||||||||
|
13.5 |
67.38 |
8.04 |
277
|
||||||||||||||||||||||
|
16.5 |
72.03 |
9.65 |
427
|
||||||||||||||||||||||
|
19.5 |
76.66 |
11.37 |
527
|
||||||||||||||||||||||
|
22.5 |
80.99 |
13.05 |
607
|
||||||||||||||||||||||
Related Products
相關產品