

A型5~160噸雙梁吊鉤門式起重機
A Type 5~160t Double Beam Hook Gantry Crane
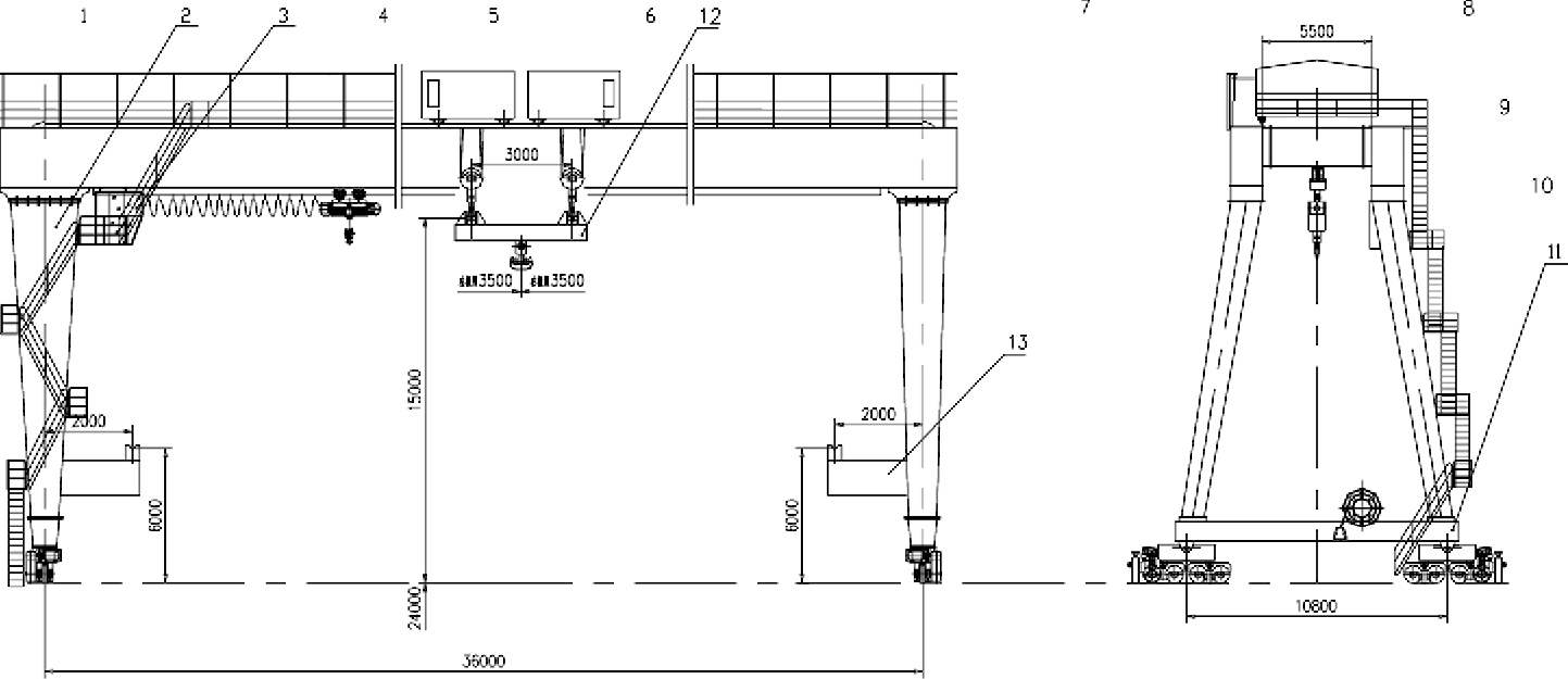
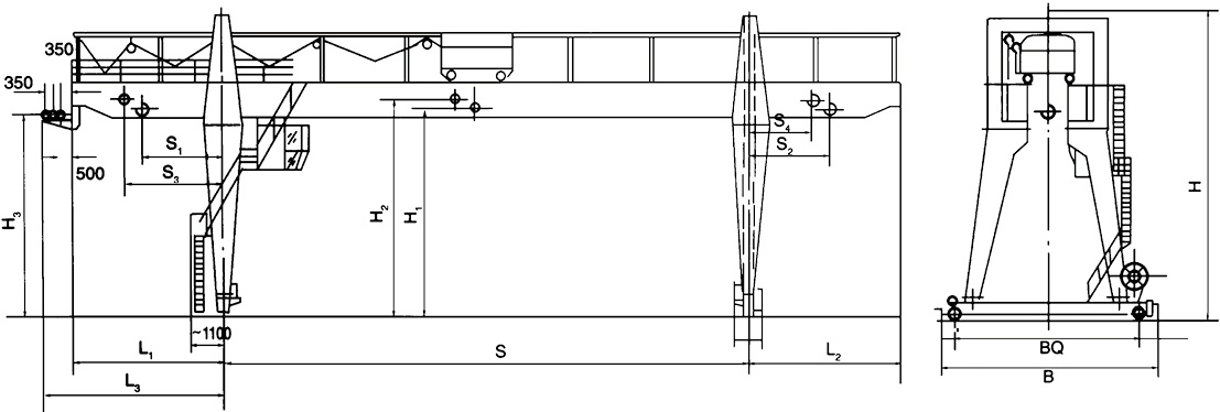
A型雙主梁吊鉤門式起重機適用于露天貨場、鐵路沿線作業進行一般的裝卸及起重搬運工作。A型門架結構,上面帶有馬鞍結構,受力合理,為國內使用最廣泛的雙主梁門式起重機。根據其結構形式,可分為包廂式MG,額定起重量5~320t;以及減
少風阻而設計的桁架式MGH結構,額定起重量為5~160t。

Related Products
相關產品