LYPG12 型地鐵、高鐵、普鐵鋪軌吊技術
本文相關關鍵詞: LYPG12|型|地鐵|、|高鐵|普鐵|鋪軌|吊|技術|LYPG12-6 型地鐵鋪軌吊是根據地鐵施工新的工藝及技術要求,在我公司深入廣泛匯集各使用單位意見的基礎上,對 LYPG12-1~5 型作了多次改進后最新型號。
1. 技術特點:
1.1. 輕便靈活、操作簡單、性能穩定。
1.2. 方便通過站臺、人防門及彎道。
1.3. 設備連結簡單可靠;電路、液壓管路連接采用快速接頭,安裝拆卸方便。
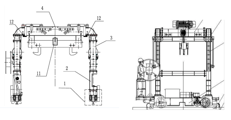
1.4. 主梁可液壓伸縮變跨,在 3m-3.9m 之間,有 5 組參數可選擇。
1.5. 門架可液壓升降,設備最高 3.808m,最低 3.158m,有多組參數可選擇。
上述方案的實施,解決了隧道內鋪軌吊不解體自由變跨、整機拆裝平板、轉場運輸及聯絡通道后續施工地鐵鋪軌吊通過限界等難題。

1.6. 走行變頻控制,起升可根據用戶要求實現單速、雙速、變頻等控制。
2.6.變頻、雙速控制既保證設備運行平穩、軌排精準對位。采用大平方供電電纜解決了壓降難題,可以確保 3km 之內不存在壓降問題。2.7.由于實現了行走變頻操控與起升雙速控制、門架升降與變跨全液壓操控,簡化了操作過程工、效及安全系數大幅提高。經隧道現場工況試驗,最快在 9 分鐘內不須拆十字吊架,完成升降、變跨、裝、卸平板的全部流程。
2.8.使用材料高標配置,整機質量輕、體積小、起重量大。

Related Documents
相關文檔